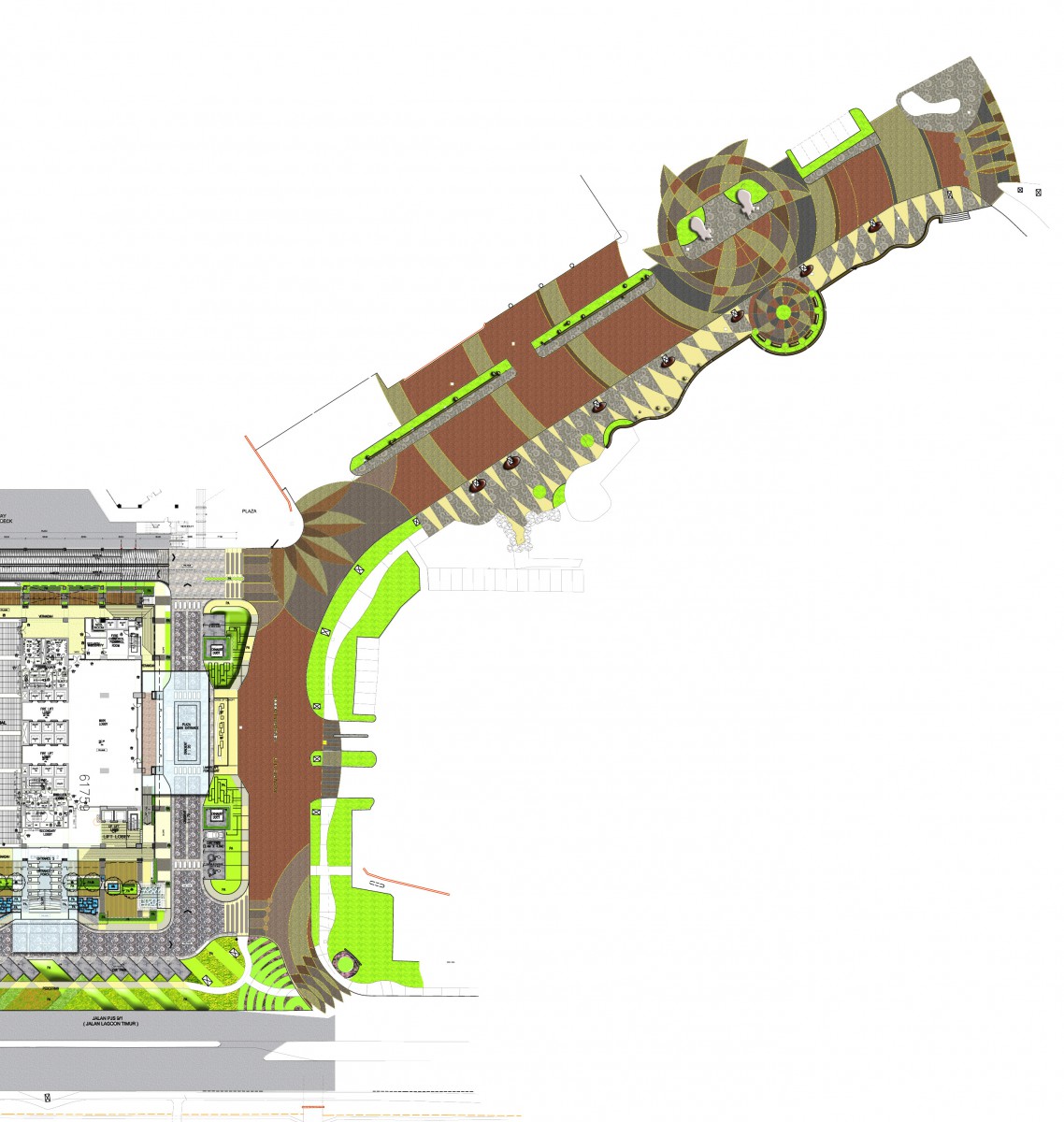
Streetscape Master Plan July 3, 2015 1138 × 1200 SUNWAY STREETSCAPE REVITALIZATION, KUALA LUMPUR Like Loading...